Ricerca rapida
Codice
Tipologia
Categoria
Città
Zona
Descrizione
Prezzo (da - a)
-
Mq (da - a)
-
Ordine
Cerca
Scheda Immobile

Sarzana: Appartamento con box auto e mansarda

Codice V000804
In contesto residenziale tranquillo e ben curato, proponiamo in vendita appartamento situato all’interno di un piccolo condominio, con facciata rifatta nel 2025 e giardino condominiale a servizio dei residenti.

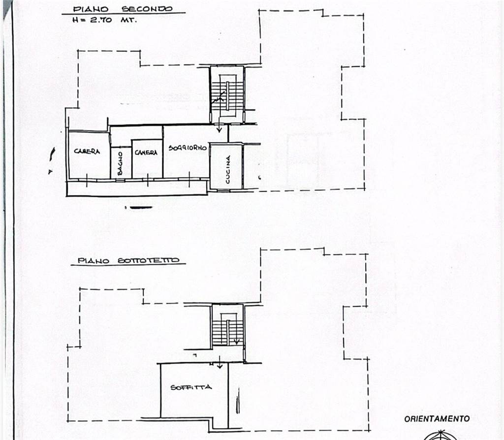
L’immobile è posto al secondo piano senza ascensore e presenta una distribuzione degli spazi funzionale e ben organizzata. L’ingresso conduce alla zona giorno composta da soggiorno luminoso e cucina abitabile separata, adatta a un utilizzo quotidiano e familiare.

La zona notte comprende una camera singola, una camera doppia e un servizio, ben posizionati rispetto agli ambienti principali della casa.

Elemento di particolare interesse è il grande balcone perimetrale, che serve tutte le stanze dell’appartamento ad eccezione della cucina. Pur non trattandosi di un terrazzo, lo spazio esterno risulta ampio e fruibile. Grazie alla buona esposizione, l’appartamento gode di ottima luminosità durante l’intera giornata e, nelle giornate più limpide, è possibile scorgere il mare in lontananza.

L’abitazione è dotata di aria condizionata, garantendo comfort abitativo nei mesi più caldi.

Completano la proprietà un posto auto privato coperto, un box auto e una mansarda, utile come spazio accessorio o deposito.

Soluzione ideale per chi cerca un appartamento in un contesto ordinato e riservato, con spazi esterni, pertinenze e buone caratteristiche generali, adatto sia come prima abitazione sia come investimento.
Prezzo
195.000,00 EUR
Mq
85
Classe
G (136)
Locali
4
Camere
2
Bagni
1
Box
1
Mq Box
11
Posti auto
1
Stato Immobile
Buono
Grado
Medio
Orientamento
Sud
Giardino
Comune
Tipo Soggiorno
Soggiorno
Tipo Cucina
Abitabile
Riscaldamento
Autonomo
Tipo Riscaldam.
Caldaia
Tipo Impianto
Radiatori
Fonte Energetica
Gas
Accessori
Aria Condizionata, Porta Blindata
MAPPA
via canalburo , Sarzana (SP)
Cookie preference